本次使用的Altium Designer软件是从公众号“”后台回复 Altium Designer 会给出百度网盘的安装包和超级详细且正确的安装步骤和汉化文件,在这里就不在进行安装和汉化的演示了。
使用现成的元件库进行绘制:
元件库网盘:
https://pan.baidu.com/s/1JeVt-3p6jqFJ8sFBesmmkg#list/path=%2F
提取码为:omf8
新建工程,如图所示:

添加文件
选中需要添加文件的工程,右击后,选择添加新的…,第一个是原理图的文件,第二个是PCB文件。此处先选择原理图文件。
然后就会出现以下的界面;
先进行芯片的绘制:
点击上方小黄标,进行芯片放置;然后就可以才刚才下载的元件库中选择;
然后继续放置排针:从下载的元件库中选择:如图所示:
放置网络编号(其他网络编号放置同下图操作)
在还没有放置之前,按Tab键会弹出一个小窗口,对网络编号名称进行修改
同时按照视频的要求把剩下的所有元件绘制完整:
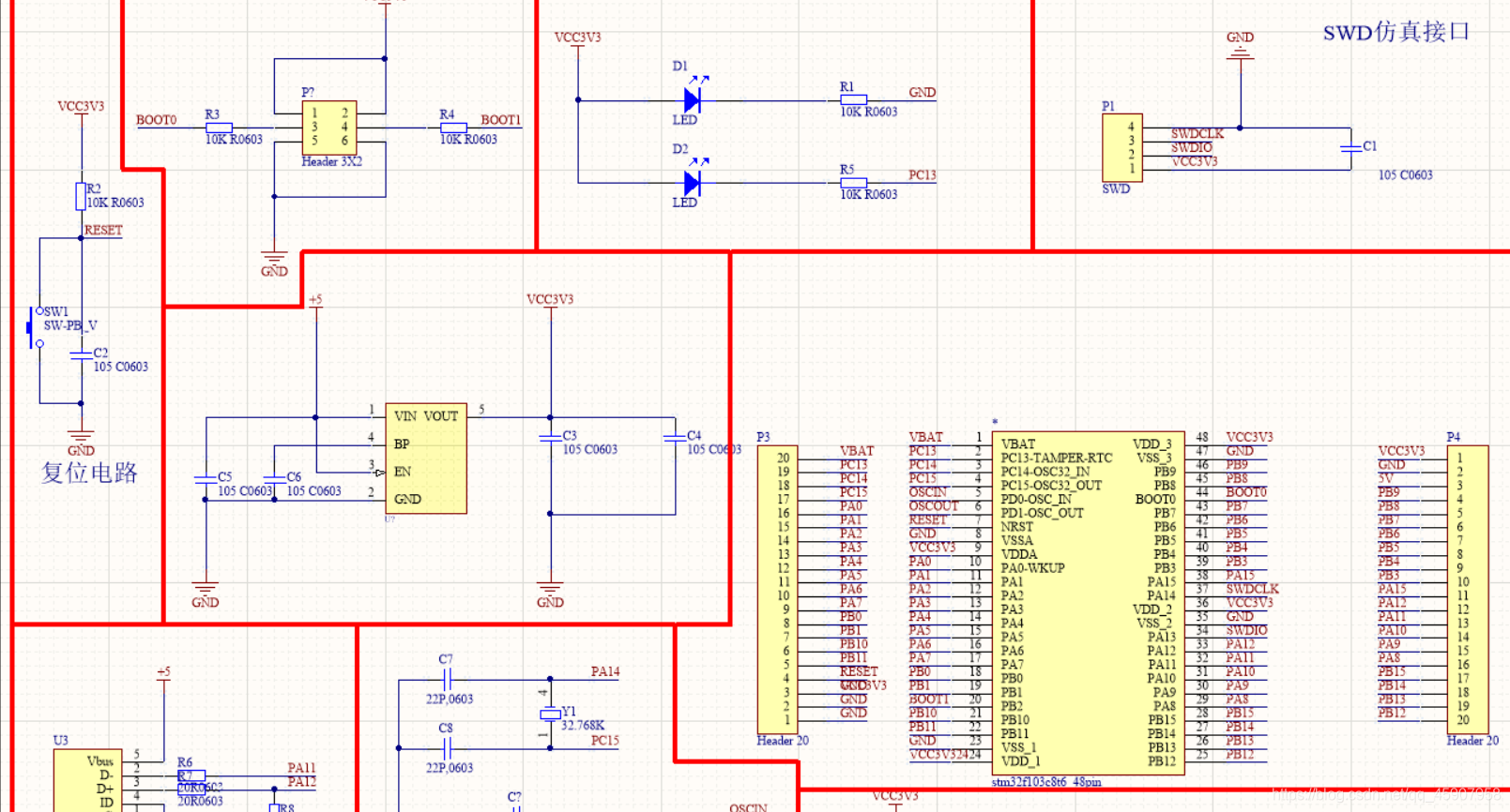
至此一个STM32最小系统完成。
1、先查看STM32最小原理图样式
首先打开一个网页:https://www.st.com/content/st_com/en.html
然后选择Products->Microcontrollers & Microprocessors->STM32-bits Arm cortex MCUs
然后在左边的菜单栏上选择STM32 F1series->STM32F 103,接下来在右边页面上选择STM32F103C8
然后选择“Download…”
然后在文档中可以查看所需的原理图。
接下来进行创建元件库工程:
然后添加文件:
使用系统自带的封装
芯片 PCB封装 


对照文档,填写封装参数
参数表


上面是参照参数表修改后的参数
然后一直点击“NEXT”,直到结束,得到以下结果:
然后进行芯片SCH封装

然后放置引脚:

参照文档,将芯片所有的引脚和引脚标识放置好
添加画好PCB封装
修改元件名称
生成库文件
接下来进行元件的创建:

放置走线
放置圆弧

完成后结果为:
然后继续创建一个新的元件,画好线条后面添加画好PCB封装,修改元件名称,生成库文件方法与上面一样。
然后利用自己创建的元件库来进行绘制原理图,和上面的步骤一样:
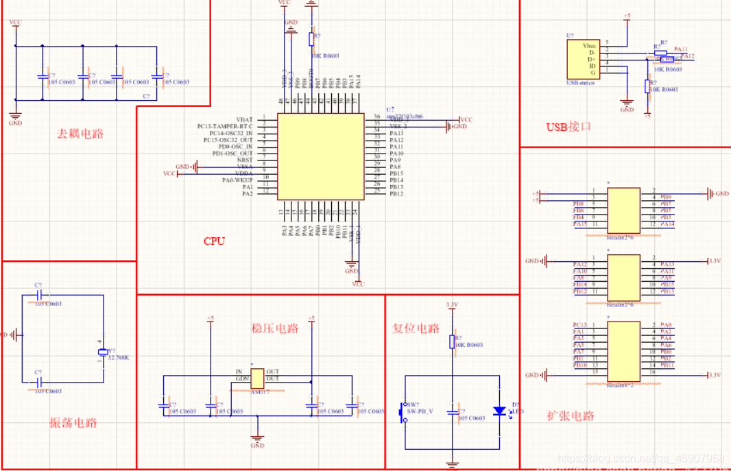
绘制好的原理图为:
至此自己创建的元件库来绘制电路原理图就完成了,
第一次使用AD软件来进行STM32最小系统的原理绘制图,使用上很棘手,不知道怎么去使用,看过视频后,才有一定的头绪,然后就是用了现成的元件库来绘制和自己创建元件库来绘制原理图,前者使用起来很方便,但是对STM32最小系统没有更好的理解,自己建立元件库对于STM32最小系统的理解会深一些,同时建立过程是很复杂的过程,在过程中遇到了很多的问题,也通过百度,视频和同学的帮助下解决了不少,接下来要更好的练习这个软件。
免责声明:本文系网络转载或改编,未找到原创作者,版权归原作者所有。如涉及版权,请联系删