专注于机械行业、专业、职业信息分享
服务于制造业百万工程师
今天教大家怎么用SolidWorks制作比较简单的冲压动画,首先给大家看个成品图,下面来和小编一起来操作吧!

建模步骤
1.新建装配体,点新零件,不点任何面,按Esc键。

2.在新零件上右键,编辑零件。

3.零件1的前视基准面上草绘。

4.草绘图形。

5.拉伸凸台,两侧对称50 。

6.圆角半径5,最后改成了2 。

7.退出零件编辑。

8.继续新零件,还是不选基准面,按Esc键。


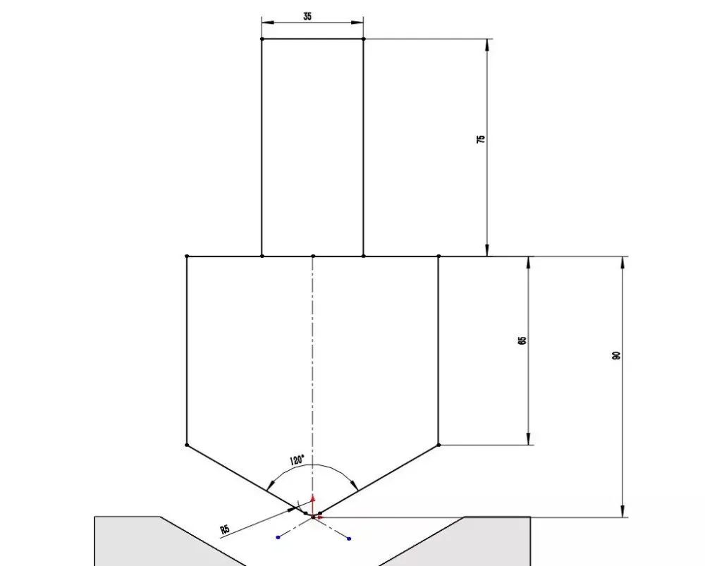
9.在零件2的前视基准面上草绘图形。(35、75、65、90 )

10.拉伸凸台,两侧对称50 。

11.新零件3 ,这次点蓝色面。

12.草绘图形,把半径改都为2 。(70是斜线的长,图中标错了)

在两个圆弧的中点上草绘两个 点 ,这两个点重合约束

把两侧的竖线标注为2

13.拉伸凸台,反向50 ,薄壁厚度2 。

14.添加距离配合30 。

15.运动算例,把键码拖到5秒处,再给距离配合的5处放置一个键码(右键),双击键码把距离改为2 。

16.点计算,完成。

免责声明:本文系网络转载,版权归原作者所有。如涉及版权,请联系删除!文中内容仅代表作者个人观点,转载不同于本平台认同或者持有相同观点。

加微信:15311423147
申请加入机械工程师微信群!
商务合作加微信:695622910
点击下方“阅读原文”查看本公众号往期经典文章!