许可优化
许可优化
产品
产品
解决方案
解决方案
服务支持
服务支持
关于
关于
软件库
当前位置:服务支持 >  软件文章 >  不整形地基三维有限元分析教程

不整形地基三维有限元分析教程

阅读数 645
点赞 0
article_banner

桥脚施工对临近铁道的影响分析,包括桩施工和承台施工阶段,承台施工时有钢矢板和H型钢支护。

位置图:

640.webp.jpg

断面位置图:

640.webp (1).jpg

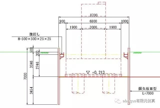
支护结构平面图:

640.webp (2).jpg

支护结构立面图:

640.webp (3).jpg
640.webp (4).jpg

地盘参数:

土質記号

 

N値

単位体積重量γ

 

 

 粘着力c

内部摩擦角φ

変形係数E0

ポアソン比ν

B1

3

19

0

25

2100

0.38

B2

10

19

0

25

7000

0.38

As

6

18

0

30

3100

0.33

Ag

29

20

0

37

17700

0.31

Dg1

39

20

0

38

27300

0.3

Dg2

21

20

0

34

14700

0.33

Dc

13

17

50

0

9100

0.4

Ds

19

18

0

30

13300

0.33

Dg3

40

20

0

36

28000

0.32

W-Gr

26

17

44

36

25100

0.32

Gr

164

20

80

40

89700

0.29

列车采用M18荷重:

640.webp (5).jpg

模型图:

step1(初期应力分析):

640.webp (6).jpg

局部放大图:

640.jpg

step2(桩基施工):

640.webp (7).jpg

局部放大图:

640.webp (8).jpg

step3(承台施工开挖1):

640.webp (9).jpg

局部放大图:

640.webp (10).jpg

钢矢板和土之间界面单元:

640.webp (11).jpg

step4(承台施工开挖2):

640.webp (12).jpg

局部放大图:

640.webp (13).jpg

支护结构详细图:

640.webp (14).jpg

解析结果:

step2(最大轨道线变位图):

640.webp (15).jpg

step3(最大轨道线变位图和钢矢板变位图):

640.webp (16).jpg
640.webp (17).jpg

step4(最大轨道线变位图和钢矢板变位图):

640.webp (18).jpg
640.webp (19).jpg

免责声明:本文系网络转载或改编,未找到原创作者,版权归原作者所有。如涉及版权,请联系删

武汉格发信息技术有限公司,格发许可优化管理系统可以帮你评估贵公司软件许可的真实需求,再低成本合规性管理软件许可,帮助贵司提高软件投资回报率,为软件采购、使用提供科学决策依据。支持的软件有: CAD,CAE,PDM,PLM,Catia,Ugnx, AutoCAD, Pro/E, Solidworks ,Hyperworks, Protel,CAXA,OpenWorks LandMark,MATLAB,Enovia,Winchill,TeamCenter,MathCAD,Ansys, Abaqus,ls-dyna, Fluent, MSC,Bentley,License,UG,ug,catia,Dassault Systèmes,AutoDesk,Altair,autocad,PTC,SolidWorks,Ansys,Siemens PLM Software,Paradigm,Mathworks,Borland,AVEVA,ESRI,hP,Solibri,Progman,Leica,Cadence,IBM,SIMULIA,Citrix,Sybase,Schlumberger,MSC Products...

相关文章
QR Code
微信扫一扫,欢迎咨询~
customer

online

联系我们
武汉格发信息技术有限公司
湖北省武汉市经开区科技园西路6号103孵化器
电话:155-2731-8020 座机:027-59821821
邮件:tanzw@gofarlic.com
Copyright © 2023 Gofarsoft Co.,Ltd. 保留所有权利
遇到许可问题?该如何解决!?
评估许可证实际采购量? 
不清楚软件许可证使用数据? 
收到软件厂商律师函!?  
想要少购买点许可证,节省费用? 
收到软件厂商侵权通告!?  
有正版license,但许可证不够用,需要新购? 
联系方式 board-phone 155-2731-8020
close1
预留信息,一起解决您的问题
* 姓名:
* 手机:

* 公司名称:

姓名不为空

姓名不为空

姓名不为空
手机不正确

手机不正确

手机不正确
公司不为空

公司不为空

公司不为空