对于多相流部分,主要从多相流的基本知识、模型的选择、典型案例问题的处理等方面进行介绍。
相,就是物质所处的状态,气液固三种,多相流意思就是存在两种或者两种以上的相。主要有气液、气固、三相流动等。在多相流中,主要涉及“主相”和“次相”。
主相:通常认为是连续介质,在流动中占主要部分
次相:通常认为是分散在主相中的相,可以有多种不同尺寸的颗粒次相
根据多相流动特征,可以将其分为以下几种流态。
(1)气泡流。连续介质中存在离散气泡,如减振器、蒸发器、喷射装置等。
 
    图8..1多相流态(1)
(2)液滴流。连续介质中存在离散液滴,如喷雾器、燃烧室等。
(3)弹性流。液相中存在大的气泡,如段塞流。
(4)分层/自由表面流。被清晰界面分开的互不相混的液体,如自由表面流。
(5)粒子流。连续介质中存在固体颗粒,如旋风分离器、吸尘器等。
(6)流化床。如沸腾床反应堆。
 
    (7)泥浆流。流体中含有颗粒、固体悬浮物、沉淀、水力输运等。
Volume of Fluid模型(VOF模型)
VOF模型主要用于跟踪两种或多种不相容流体的界面位置。VOF模型主要应用于分层流、自由液面流动、晃动、液体中存在大气泡的流动、溃坝等现象的仿真计算,其可以计算流动过程中分界面的时空分布。
Mixture模型(混合物模型)
混合物模型可用于两相或多相流计算。由于在欧拉模型中,各相被处理为互相贯通的连续体,混合物模型求解的是混合物的动力方程,并通过相对速度来描述离散相。混合物模型的应用领域包括低负载的粒子负载流、气泡流、沉降、旋风分离器等。混合物模型也可以用于没有离散相相对速度的均匀多相流混合物模型是一种简化的欧拉模型,其简化的基础是假设Soks数非常小(粒子与主相的速度大小方向基本相同)。
Eulerian模型(欧拉模型)
欧拉模型是fluent中最为复杂的多相流模型,建立了一套包含有n个动量方程及连续方程的模型来求解每一相。压力项和各界面交换系数是耦合在一起的。耦合方式则依赖于所含相的情况。颗粒流与非颗粒流的处理方式是不同的。欧拉模型应用领域包括气泡柱、上浮、颗粒悬浮和流化床等。
1.一般选取规则
对于多相流模型,通常可以采用以下一些情况进行选择。
(1)对于气泡流、液滴流、存在相混合及分散相体积分数超过10%的粒子负载流,使用混合物模型或欧拉模型。
(2)对于弹状流、活塞流,使用VOF模型。
(3)对于分层流、自由表面流,使用VOF模型。
(4)对于气力输运,均匀流使用混合模型,颗粒流使用欧拉模型。
(5)对于流化床,使用欧拉模型。
(6)对于泥浆流及水力输运,使用混合模型或欧拉模型。
(7)对于沉降模拟,使用欧拉模型。
通常来说,VOF模型适合计算分层或自由表面流动,混合物模型及欧拉模型适合于计算域内存在相混合或分离且分散相体积分数超过10%的情况(分散相体积分数低于10%时适合于使用离散相模型进行计算)。
注:这里需要说明的是:分散相体积分数指的是在多相流动中,分散相(小液滴、气泡等)占据整个多相流体体积的比例,因此,当分散相体积分数超过10%时,说明分散相在整个多相流体中占据的体积相对较大,此时混合物模型及欧拉模型比VOF模型更适合用于模拟计算,因为VOF模型通常适用于液体分层或自由表面流动情况,分散相体积分数较小的情况。当分散相体积分数低于10%时,液相或气相可以被视为连续相,而分散相可以被视为离散的物质点。这种情况下,可以使用离散相模型进行计算,离散相模型将分散相看作离散的、不连续的颗粒,通过跟踪这些颗粒的位置和速度来描述多相流动。离散相模型主要适用于颗粒浓度较低的情况,也就是分散相体积分数较低的情况。当颗粒浓度增加时,离散相模型的计算复杂度会增加,同时计算的误差也会增大,因此在颗粒浓度较高时,需要使用其他模型进行计算,例如欧拉模型或混合物模型。
一般选择
对于混合物模型及欧拉模型的选取,可以采取以下规则。
(1)当分散相分布很广时,选择使用混合物模型。若分散性只是集中于区域的某一部分,则选择使用欧拉模型。
(2)若相间曳力规则可利用,使用欧拉模型可以获得更及精确的计算结果。否则选择混合物模型。
(3)混合物模型比欧拉模型计算量更小,且稳定性好,但是精度不如欧拉模型。
量化选择
粒子负载
定义为离散相与连续相的惯性力的比值
利用粒子负载,相间相互作用可以分为以下几类。
①非常低的粒子负载,此时相间作用为单向(也就是说,连续相通过曳力及湍流影响例子,但是粒子不会影响到连续相流动)。离散相模型、混合物模型及欧拉模型均可解决此类问题。由于欧拉模型计算开销较大,因此此类问题建议使用离散相模型及混合物模型。
②对于中等粒子负载,相间作用为双向(粒子与连续相间相互影响)。离散相、混合模型及欧拉模型均可应用于此类问题,但是在如何选择最合适的模型上,需要配合其他参数(如Stokes数)进行综合判断。
③对于高粒子负载情况下,相间存在双向耦合、粒子压力及黏性压力,只有欧拉模型可以解决此类问题。
Stokes数
对于中等强度的例子负载,估计Stokes数有助于选择最合适的模型。Stokes数为粒子间响应时间与系统响应时间的比值:
对于St<1的情况下,任意三种模型(离散相、混合模型、欧拉模型)均可使用,此时可以选择最廉价的模型(大多数情况下为混合模型)或者根据其他因素选取最合适的模型。
对于St>1情况下,粒子运动独立于连续相流场,此时可选用离散相模型或欧拉模型。
对于St≈1情况下,三种模型同样有效,用户可以选择最廉价或根据其他因素选择最合适的模型。
模拟步骤
1、激活湍流模型
激活Multiphase。离散相模型不在此面板中设置
2、设置材料
需要注意的是,若模型中包含有颗粒相,则定义材料时需要从流体类材料中选择,而不是从固体类材料中选择。
3、设置Phase
指定主相及次相,同时还需要指定相间相互作用。如在VOF模型中指定表面张力,在混合模型中指定滑移速度函数,在欧拉模型中指定曳力函数。
滑移速度函数:滑移速度函数是指在多孔介质中流体的滑移速度与固体相对运动速度之间的关系。在多孔介质中,流体分子因为与固体表面的相互作用而产生速度滑移,即相对于固体表面,流体分子的速度发生变化。为了描述多孔介质中的流动,需要将流体速度和固体相对运动速度联系起来,这时就需要用到滑移速度函数。滑移速度函数通常是通过实验或理论模型来确定的,它可以被看作是一种流体的特性参数,用于描述流体在多孔介质中的运动规律。在多孔介质的模拟计算中,滑移速度函数通常作为一个输入参数,用于确定多孔介质中流体速度的分布。
曳力函数:曳力函数指的是在流体力学中,固体颗粒在流体中运动时所受到的阻力与颗粒速度之间的关系。曳力函数通常用来描述流体中固体颗粒的运动规律,特别是在多相流动中,颗粒与流体的相互作用是影响流动行为的关键因素之一。曳力函数是通过实验或计算模型来确定的,它通常被表示为速度的某个幂次方。在一般情况下,曳力函数会随着颗粒速度的增加而增大,但是其增加速率会逐渐减缓,最终趋于一个定值。
4、设置操作条件
5、边界条件设置
6、其他设置
具体对各个模型的设置可在软件中自行学习,这里不再介绍。
对于该部分,列出对应的条件,具体操作见视频
空化现象仿真计算(Mixture模型)
参考案例: 【Fluent案例—Mixture模型—空化现象仿真】
在流动情况下,当区域压力低于介质的饱和蒸汽压时,在该区域即会发生空化。如图所示为最常见的风琴管空化发生装置。流体在流经该模型过程中,在孔径变化剧烈位置形成局部低压,容易形成空化,如图中vapor所在区域。
 
    图8.2 3D模型
 
    图8.3 简化2D模型
 
    进出口边界条件为:入口边界压力:P=250MPa:出口边界压力P=295000Pa:水的饱和蒸汽压P=3540Pa。计算过程中涉及两种材料类型:液态水及其汽化后的水蒸气。其所涉及的材料物理性质见表。
 
    溃坝模拟(VOF模型)
参考案例: 【fluent溃坝模拟】
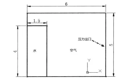
采用2D平面计算模型,域长6m,宽5m,水位高4m,宽1.5m,计算水在重力作用下的流动情况。重力沿Y轴方向-9.81m/s2。材料介质采用FLUENT材料数据库中的空气(Air)与液态水(water-liquid)。计算域只有一个压力出口,出口位置压力为大气压(相对压力为0),其他边界为光滑无滑移壁面。空气为主相,水为第二相。
 
    图8.4 简化2D模型
鼓泡塔仿真计算(Eulerian模型)
参考案例: 鼓泡塔仿真
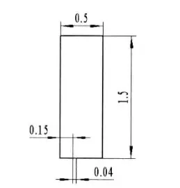
鼓泡塔是一种常见的化工设备。其试验装置如图16-74和图16-75所示。在一个直径0.5m的圆柱形玻璃管底部开有一个直径4cm的孔,玻璃管中注满水,空气从底部小孔注人。气泡直径约为3mm,以速度6.6e-4m/s注入玻璃管中。3D几何模型如图所示。
 
    图8.5 3D模型
 
    图8.6 2D模型
考虑模型的轴对称性,采用2D平面模型进行仿真计算,模型尺寸如图所示。其中底部0.04m线段位置为气泡入口。建立矩形面如上,设置网格尺寸0.005m,共生成网格29700个。
先介绍到这里,后期学习再填补。