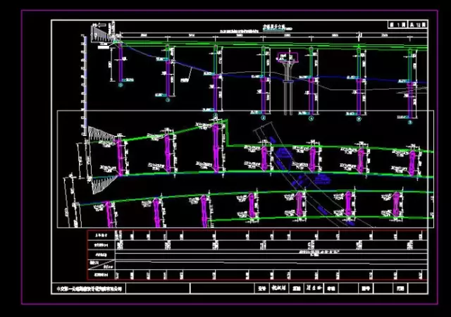
(一)项目情况如下图所示:因为是弯桥,所以目标就是要将桥型立面,信息表,平面放在一张图中。

(二)给桥型立面与信息表加两个多线段框(385x267,跟内框一样大),放在不打印图层。如下图所示:
(三)进入布局空间,做一个视口,将视图定位到桥型立面图。如下图所示:
注意两个角点。
(四)双击进入视口内,在CAD命令栏中输入"Zoom",当出现提示时输入"W",当提示指定第一个角点时,输入"end",当提示出现end于时,鼠标点上图的角点1,当提示指定对角点时,再次输入end,当提示出现end于时,鼠标点第上图的角点2,最后得到精准套好的图如下:
(五)按照同样的方法将信息表的图框套好,并放入图框中,最后如下:
(六)下面还剩下一张平面图,如下所示,我们需要将平面图放在图框中间。
(七)将立面图的视口拷出来,然后双击进入视口,点
,按鼠标左键移动至平面图位置。如上图所示(按手键才能保持比例不变)。然后选菜单 视图->动态观察->自由动态观察,将出现如下图所示的带五个圆的图面。
(八)在大圆外面(一定要在外面,不要在里面)按鼠标左键,上下移动鼠标将会旋转桥平面,而且旋转是动态的,可见的。最后得到如下图所示的合适的平面图位置。
(九)按ESc退出视口,稍加处理,将平面图移至图框中央,得到最终成图,由于该桥立面为左幅桥,因此平面左幅要全部显示,右幅可不全显视。
