如果大家在项目中使用到了直插式热继电器,那执行项目检查的时候有时候会出现这两种警告:
005013:目标的连接点 类 型不同。
005014:连接和连接点的连接点类型不同。
如果还不明白消息文本的含义的话,可以按照我在《Eplan——利用在线帮助 系统 解读项目检查错误消息》的方法查一下详细的说明。
这里是引用 P005013: 目标的连接点类型不同 原因 关于功能连接点,与一个连接相连的目标有不同的连接点类型。例如,一个目标有连接点类型“芯线/接线”,而另一个目标配有连接点类型“光纤”。 解决方法 请在所有目标是连接的功能连接点上指定统一的连接点类型。 更新连接后重新进行项目检查。
P005014: 连接和连接点的连接点类型不同 原因 在连接目标的功能连接点上设置了相同的连接点类型。此外,您为连接设置连接定义点,并为该定义点指定了一个与目标连接点类型不一致的功能定义。 解决方法 请您为连接定义点和连接目标分配相同的连接点类型。
这时候熟悉元件符号属性的应该恍然大悟,“连接点类型”,在这里可以查看。
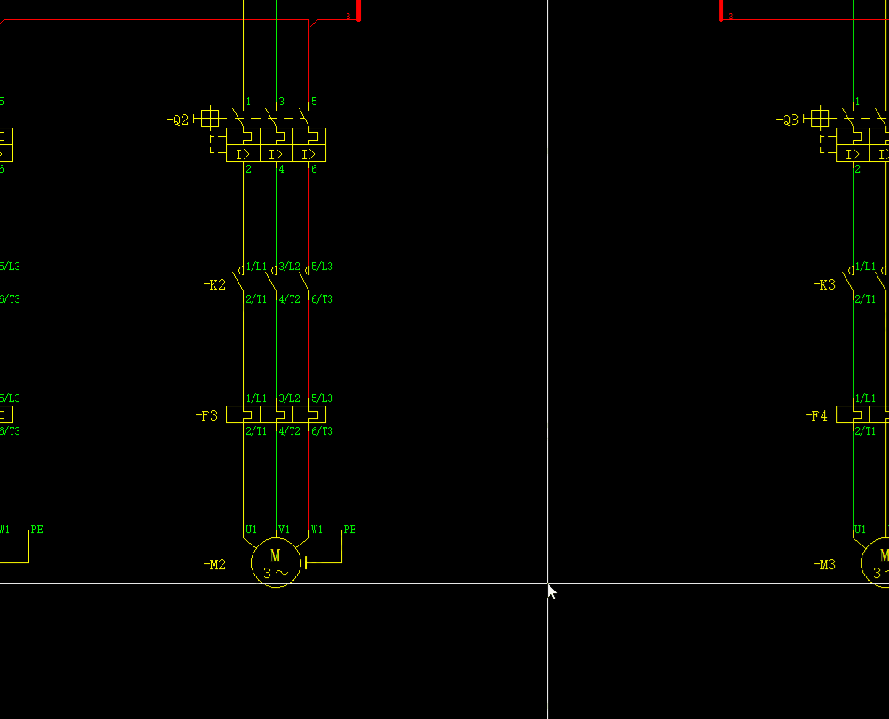
显然,直插式热继电器主回路上端口是“直接连接点”,而接触器的下端口是“芯线/导线”,无法匹配。这样在后期 自动生成 编号时就会出幺蛾子。如何调整呢,根据实际情况把接触器下端口改为“直接连接点”就行了。再次执行项目检查就会发现警告消失。
免责声明:本文系网络转载或改编,未找到原创作者,版权归原作者所有。如涉及版权,请联系删