!ANSYS命令流学习笔记6
!热应力分析
!学习重点:
!1、 理解热力耦合的直接法和间接法
!间接法:先进行热分析,然后将求得的节点温度作为载荷施加到结构应力分析中。
!直接法:直接采用具有温度和位移自由度的耦合单元,同时得到热分析和结构应力分析的结果。直接法又分弱耦合和强耦合选择强耦合时,形成不对称矩阵,线性系统可以直接求解。选择弱耦合时,对称矩阵,还是把热和结构分别进行求解,并将热结果施加在结构上,是间接法的变形,至少经过两次迭代。弱耦合可以保证精度。
!2、如何利用坐标值来选择单元或几何。熟练应用nsel,lsel,asel命令。选择不同的单元,指定不同单元类型,或者材料属性
!3、后处理强度理论的理解。不同的材料可以发生不同形式的失效。而且同一种材料在不同的受力状态下,也可以发生不同的失效模式。如碳钢单向拉伸,以屈服模式失效。但制成螺钉时,其根部应力集中引起三向拉伸,会出现断裂。铸铁单向拉伸断裂失效,但是钢球挤压铸铁板时,接触点三向受压状态,铸铁出现屈服。无论脆性还是塑性材料,在三向拉应力相近时应用第一强度理论(最大拉应力),以断裂失效判定。在三向压应力相近时,都会引起塑性变形,采用第三或第四强度理论。
!第三强度理论,最大切应力理论。各向同性的材料,最大剪应力校核,适用于塑性材料,屈服失效。偏保守。σ1-σ3≤ [σ]。莫尔强度理论可以看做第三强度理论的推广,但是实际上莫尔强度理论以试验资料为基础,经过逻辑综合得到的。
!第四强度理论,最大形状改变比能理论,适用于塑性材料的屈服失效,比第三理论适用范围广。Squa{1/2*[ (σ1-σ2)^2 + (σ2-σ3)^2 +(σ3-σ1)^2 ] } ≤ [σ]
!案例如下:
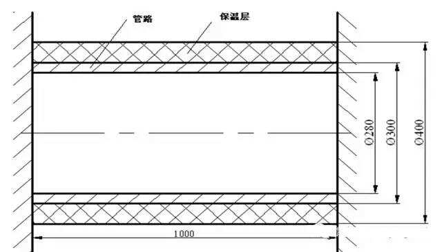
! 某液体管路内部通有液体,外部包有保温层,保温层与空气接触,结构如图2.1所示。已知管路由铸铁制造,其导热系数为70W/(m·℃),弹性模量为200GPa,泊松比为0.3,热膨胀系数为1.2×10-5/℃;保温层的导热系数为0.02W/(m·℃),弹性模量为20GPa,泊松比为0.4,热膨胀系数为1.2×10-5/℃;管路内液体压力0.3MPa,温度为70℃,对流换热系数为1W/(m2·℃);空气温度为-40℃,对流换热系数为0.5W/(m2·℃)。试分析管路内热应力情况。
!
finish
/clear
len1=0.5
d1=0.28
d2=0.3
d3=0.4
/prep7
et,1,plane223 !223单元可以具有ux,uy,temp三个自由度
!定义单元keyopt
keyopt,1,1,11 !热结构耦合
keyopt,1,2,1 !弱耦合。 选择强耦合时,形成不对称矩阵,线性系统可以直接求解。选择弱耦合时,对称矩阵,还是把热和结构分别进行求解,并将热结果施加在结构上,是间接法的变形,至少经过两次迭代。弱耦合可以保证精度
keyopt,1,3,1 !轴对称结构axisymmetric
!设置两种材料的材料属性
mp,ex,1,2e11
mp,nuxy,1,0.3
mp,kxx,1,70 !导热系数
mp,alpx,1,1.2e-5 !热膨胀系数
mp,ex,2,0.2e11
mp,nuxy,2,0.4
mp,kxx,2,0.02
mp,alpx,2,1.2e-5
!建立几何模型,两个面
rect,d1/2,d2/2,0,len1
rect,d2/2,d3/2,0,len1
aglue,all !黏结所有面,其实就俩
!调整视角
/vup,1,X !X轴向上,应该类似/view,1,0,0,1
!重新编号,避免增加不必要的矩阵规模
/pnum,area,1
numcmp,all
/replot
!等分线段,方便网格质量控制
!可以直接划分尺寸,lsel,s,leng, ,d2/2-d1/2,len1
!lesize,all,1 全部画成1mm的网格,下文操作为了熟悉选择过程。
lsel,s,leng, ,len1 !选择长度为len1的线
lesize,all, , ,20 !分成20份
allsel,all
lsel,s,leng, ,d2/2-d1/2 !选择长度为d2/2-d1/2 的线
lesize,all, , ,4 !分成4份
allsel,all
lsel,s,leng, ,d3/2-d2/2 !选择长度为d3/2-d2/2 的线
lesize,all, , ,6 !分成6份
allsel,all
!指定单元属性,aatt,areas attribute
asel,s,loc,x,d1/2,d2/2
aatt,1
allsel,all
asel,s,loc,x,d2/2,d3/2
aatt,2
allsel,all
/replot
!划分网格
amesh,all
finish !退出前处理
/solu
!设置对流、压力、位移约束、参考温度
nsel,s,loc,x,d1/2
sf,all,conv,1,70 !surface loads on nodes
sf,all,pres,0.3e6
nsel,s,loc,x,d3/2
sf,all,conv,0.5,-40 !surface loads on nodes
nsel,s,loc,y,0
nsel,a,loc,y,len1
d,all,uy
tref,20 !reference temperature,参考温度

Solve !此处报警告,计算依然有效。查看err文件,提示很多节点未选择。

finish !结束求解
/post1
plnsol,temp
/expand,27,axis, , ,10 !绕轴270°扩展
/VIEW,1,1,1,1 !调整视图
/replot

asel,s,loc,x,d1/2,d2/2
allsel,below,area
plnsol,s,x
plnsol,s,y
plnsol,s,z
plnsol,s,int !stress intensity 第三强度理论,各向同性的材料,最大剪应力校核,适用于塑性材料,屈服失效。偏保守。
plnsol,s,eqv !von mise stress 第四强度理论,最大形状改变比能理论,适用于塑性材料的屈服失效,比第三理论适用范围广。
finish